For sale in Amsterdam-Zuid (Stadionplein neighborhood): Always wanted to live in one of the nicest neighborhoods of Amsterdam in a lovely double ground floor apartment with garden? Then this house on the popular Van Tuyll van Serooskerkenweg is perfect for you!
A spacious and recently renovated double ground floor apartment with up to five bedrooms, a total living area of approximately 141 m2 and an attractive garden in the popular Amsterdam South.
ENVIRONMENT: The apartment is located in the Stadion neighborhood. This neighborhood has many cozy cafes and restaurants such as Vascobello, the Amsterdam Proeflokaal, Neni, Jack Dish, Mr. Sam Asian Bistro et cetera. For your daily shopping you can go to the Marqt or the Albert Heijn and the many stores on the Beethovenstraat.
The Vondelpark, Amsterdamse Bos and Beatrixpark are nearby, as well as many recreational opportunities and sports facilities.
In addition, a very convenient location in relation to NS station Amsterdam Zuid WTC, where you have a direct and fast connection to Schiphol Airport. Excellent accessibility to the city center by streetcar (lines 16 and 24) and bus and cycling distance to the Zuidas. The A-10 ring road can be reached within a few minutes by car via the S108 and S109.
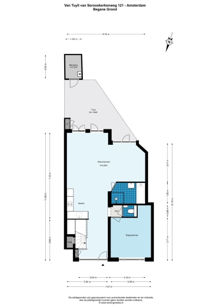
GLOBAL LAYOUT: Through a private entrance you enter the house on the first floor. The spacious open-plan living room was completely renovated at the time of the renovation (2017) and features pleasant dimensions, a luxurious open kitchen, access to the cozy garden (location: south) through French doors and a beautiful oak parquet floor. The kitchen is located at the front and equipped with all appliances (dishwasher, fridge-freezer, stove, stainless steel hood and a large oven). Furthermore, you will find a spacious separate bedroom which is currently arranged as an office / work room at the front. Besides a separate toilet is also the modern bathroom on this floor. The bathroom has a bathtub, sink and shower.
Adjacent to the living room, through double doors you will find a sunny garden of 20m2 with wooden shed (Location: South).
In the basement you will find the fourth spacious bedroom and a storage room.
PARKING: Possibility of two parking permits! Permit area: South 2.2. Currently there is no waiting list (source: municipality of Amsterdam dated April 2024). A parking permit for Zuid 2.2 allows you to park in Zuid-1, Zuid-2 and Zuid-8.
ASSOCIATION OF OWNERS: “Association of Owners – Van Tuyll van Serooskerkenweg 115 t/m 125 is a healthy and active VvE which is externally and professionally managed. The contribution is currently EUR. 438.21 per month. Recently there has been some major maintenance.
Since the total renovation, this house has its own central heating boiler (Intergas HR). However, there is monthly EUR. 123, – as fixed fee for the central heating system of the VvE (block heating).
OWNERSHIP SITUATION: The property is located on municipal long leasehold land. The ground lease is bought off in perpetuity!
PARTICULARS:
– User Area living: approximately 141 m2 (NEN2580 report available);
– recently renovated (2017) and well maintained;
– five bedrooms, second bathroom is possible;
– sunny south facing garden with shed;
– many restaurants and stores nearby as well as a French bakery, Marqt and an Albert Heijn;
– near Beatrixpark, Vondelpark, Amsterdam forest and nice playgrounds;
– near roads, near station Zuid WTC and public transport to downtown;
– well insulated house (energy label A);
– leasehold perpetually purchased;
– professional and healthy VvE;
– delivery can be soon, in consultation;
– subject to approval seller.
For more information about this property and/or to make a viewing appointment, please contact our office. Our office will be happy to assist you.
This property is offered in accordance with Article 7:17 paragraph 6 of the Civil Code. The specified features and / or information is compiled by us with care. However, no liability is accepted for any incompleteness, inaccuracy or otherwise, or the consequences thereof. All dimensions and surface areas are indicative only. The given characteristics are only meant as an indication. NEN2580 clause, age clause and non-self-occupancy clause apply to this property.
- Garden
- Kitchen:
- Fully Equipped
- High Ceiling
- Storage
- Furnished
- Refrigerator
- Stove
- Oven
- Dishwasher
- Country:
- Netherlands
- County:
- Noord-Holland
- City:
- Amsterdam
- Zipcode:
- 1076 JJ
- Street:
- Van Tuyll van Serooskerkenweg
- Street Number:
- 121
- Floor Number:
- 0
- Longitude:
- E4° 51' 31.6''
- Latitude:
- N52° 20' 37.6''
Van Tuyll van Serooskerkenweg 121
Van Tuyll van Serooskerkenweg 121, Amsterdam, 1076 JJ
- Property Type :
- Apartment
- Listing Type :
- For Sale Amsterdam
- Price Type :
- K.K.
- Price :
- €950.000 K.K.
- View :
- Garden
- Bedrooms :
- 5
- Bathrooms :
- 1
- Half Bathrooms :
- 1
- Square Footage :
- 141 m²
- Year Built :
- 1931
- Lot Area :
- 0 m²
